
Stjóri fyri nýstovnaðu fyritøkuna er Tróndur Kollsker.
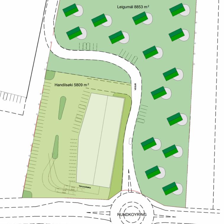
Vaksandi ferðavinnan eftirspyr góðar gistingamøguleikar og gisting sum brýtur frá tí vanliga. Náttúruvakra økið niðri við Tjørn, við útsýni oman á Leitisvatn og út á Trælanípu, verður partvíst ein perla við vøkrum stílfullum smáttum sum fella inn í landslagið. Smátturnar verða bygdar við føroyskum byggilistarligum dygdum sum byggja á traditiónsríka føroyska byggilist, sum skulu fáa smátturnar at falla natúrliga inn í landslagið og skapa eina kenslu av friði og ró fyri gestirnar.

Hendan verkætlanin passar væl til ta strategi kommunan hevur tá tað ræður um ferðavinnu. Ein verkætlen sum hendan er sosialt-, búskaparliga- og umhvørvisliga burðardygg. Lokalt fer verkætlanin at geva eitt íkast til trivnaðin og fer at geva nógv avleitt virksemi, sum gevur eitt gott fíggjarligt íkast til kommununa.
Stórur dentur verður lagdur á at tað ikki verður gjørt ov stórt inntriv á umhvørvið við niðri á Tjørn, økið verður skipað við gøtum heldir enn vegum, men ein vegur og gøta verða sum samstundis fer at leiða ferðsluna út í Nípu, heldir enn niðan eftir Hornavegnum.
Áhugi fyri handilsøki
Fyri stuttum varð eitt grundøki til handils- og skrivstovuvirksemi á 5.809 m² niðri á Tjørn sett til sølu. Eitt tilboð er komið inn um at skipa handilsvirksemi á hesum øki. Býráðið hevur arbeitt miðvíst fyri at økja um vinnuvirksemið og hvussu vinnuøkið niðri á Tjørn skal skipast á bestan hátt. Innkomna tilboðið verður viðgjørt á næsta fíggjarnevndar- og býráðsfundi, áðrenn endalig støða verður tikin til søluna.
Kommunan ynskir, at handilsøkið og økið við smáttunum halda ein høgan standard, sum hóskar til hetta serstaka øki.

Vinarliga broyt tínar kennifíla - og privatlívsstillingar fyri at síggja hetta innihald